4841hermitage
4841hermitage
4841hermitage
4841hermitage
SEE ALL PHOTOS
4841hermitage
4841hermitage
4841hermitage
4841hermitage
For Sale

4841hermitage

4841 N Hermitage Avenue , Chicago, IL 60640

$2,475,000

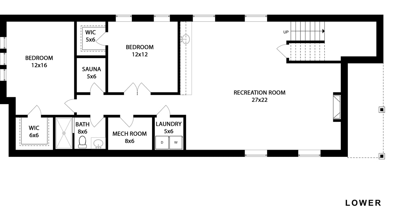
Stunning new construction single-family home by expert builder on a 33 x 165 lot in Ravenswood. Every detail has been considered in this impeccable 6 bedroom, 4.1 bath home. Contemporary facade with brick and Hardie Board siding. Combined living/dining room features fireplace with custom built-ins, large windows offering ample natural light, and beautiful custom millwork. Chef quality kitchen equipped with professional grade Wolf/Thermador appliances, large island with bar seating, soft close cabinetry with under counter lighting, stunning quartz counters, butler pantry, pantry closet, and breakfast area. Adjoining family room features fireplace with custom built-ins and patio doors to covered back porch. Rear mudroom with built-in storage. Spacious primary suite includes ample closet space with custom organizers, and spa like ensuite bath with freestanding soaking tub, frameless glass shower, dual vanities, and heated flooring. Three additional bedrooms, one with ensuite bath, hall bath, and laundry with washer/dryer + sink complete the upper level. Finished lower-level with radiant heated flooring throughout includes recreation room with fireplace featuring custom built-in, wet bar + beverage center, sauna, 2 guest bedrooms, full bath, mechanicals, and second laundry hook-up. Statement lighting, designer fixtures and finishes, built-out closets, custom millwork, and heated flooring throughout lower-level and all upper level baths. Fully enclosed yard with outdoor kitchen and detached three-car garage featuring outdoor gas fireplace. Easy access to all your favorite spots for food, entertainment and shopping in Ravenswood and nearby neighborhoods. Home is ready for a walkthrough, expected completion in early July.

6
beds

5
baths

4,553 Sq.Ft. LIVING AREA

5,445 Sq.Ft. lot

Features & Amenities

Interior

  • total bedrooms6
  • Total bathrooms5
  • full bathrooms4
  • half bathroom1
  • KITCHEN Soft close cabinetry, Butler's pantry with sink, Pantry closet, Island with bar seating, Quartz counters
  • Laundry room Upper-level laundry with sink and washer/dryer installed, Lower-level laundry with second hookup
  • Flooring Oak hardwood throughout main and upper-level, Carpet throughout lower-level bedrooms and hallway, Tile in lower-level recreation room
  • Fireplace Gas fireplace with custom built-ins in living room and family room, Electric fireplace with custom built-ins in recreation room, Outdoor gas fireplace in backyard
  • APPLIANCES Thermador 30" Freedom® Built-in Refrigerator Column, Thermador 18" Freedom® Built-in Freezer Column, Thermador 24" Emerald® Dishwasher, Wolf 36" Sealed Burner Rangetop - 6 Burners, Wolf 30" E Series Professional Built-In Single Oven, Wolf 30" E Series Professional Speed Oven, Zephyr Monsoon Connect Insert Range Hood, Elica panel ready wine center, Avanti Beverage Center , Samsung 7.5 cu. ft. Smart Gas Dryer with Steam Sanitize+, Samsung 4.5 cu. ft. Large Capacity Smart Front Load Washer with Super Speed Wash
  • other interior Features 8' interior doors on main and upper-level , Custom millwork throughout , Mudroom with built-in storage, Lower-level sauna , Radiant heat throughout lower-level, Lower-level wet bar

Area & Lot

  • Status For Sale
  • Living Area4,553 Sq.Ft.
  • Lot Area5,445 Sq.Ft.
  • TypeResidential
  • YEAR BUILT2025
  • NeighborhoodLincoln Square

Exterior

  • STORIES2
  • Garage Space3
  • utilitiesTwo high efficiency HVAC systems, High efficiency gas water heater, Drain tile system with sump and ejector pump
  • roofArchitectural asphalt shingle
  • lot featuresEnclosed yard, Covered back porch, Outdoor kitchen with built-in grill, Outdoor fireplace
  • parkingDetached three-car garage with outdoor fireplace
  • HEAT TYPEGas/forced air
  • AIR CONDITIONINGCentral air

Financial

  • Sales Price$2,475,000
image

Schedule a Showing

We would love to show you this beautiful property. Select your preferred date and time below. We will contact you shortly to confirm your appointment.

Schedule a Showing

We would love to show you this beautiful property. Select your preferred date and time below. We will contact you shortly to confirm your appointment.

Thank you for your interest in 4841 N Hermitage Avenue , Chicago, IL 60640. We are reviewing your request and will be in touch shortly!

Mortgage Calculator

Estimate your monthly mortgage payment, including the principal and interest, property taxes, and HOA. Adjust the values to generate a more accurate rate.

All estimates are provided for informational purposes only. Actual amounts may vary.
$0,000 Your Payment 20 15 65
$0,000 Your Payment

Lincoln Square

Explore

Work With Us

Get assistance in determining current property value, crafting a competitive offer, writing and negotiating a contract, and much more. Contact us today.

Follow Me on Instagram